Главная / Новое Строительство / Планировка с мебелью
Планировка 2-х этажного дома в Ижевске
Адрес дома г. Ижевск, переулок Янтарный 3
- Общая площадь дома - 173,4 м
- 1 этаж 94,8 м
Гостиная - 24,5 м
Столовая - 24,5 м
Прихожая - 8,2 м
СУ - 8,2 м
Тамбур - 5 м
Котельная - 8,6 м
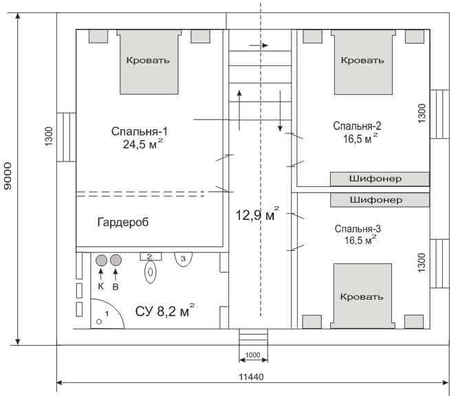
Коридор - 15,8 мСУ 1. Душ
2. Унитаз
3. Раковина
4. Стиральная машина - 2 этаж, 78,6 м, 4 окна
СУ 1. Душ
2. Унитаз
3. Раковина
Планировка дома с мебелью 1 этаж
|
Планировка дома с мебелью 2 этаж |

